Honda Civic manuals

Subaru Legacy BN/BS (2015-2019) Service Manual: Dtc b16a2 short in front sub sensor rh (to ground)

DIAGNOSIS START CONDITION:

Ignition voltage is 10 V to 16 V.

DTC DETECTING CONDITION:

Shorted between front sub sensor RH circuit and GND circuit

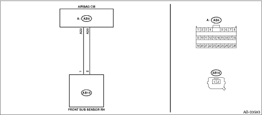
WIRING DIAGRAM:

NOTE:

For the coupling connector, refer to “WIRING SYSTEM”.

Airbag system Airbag System > WIRING DIAGRAM

STEPCHECKYESNO

1.CHECK POOR CONTACT OF CONNECTORS.

Check for poor contact of the connectors between the airbag control module and the front sub sensor RH.

Is there poor contact-

Replace the airbag main harness along with body harness.

Diagnostic Chart with Trouble Code > DTC B16A2 SHORT IN FRONT SUB SENSOR RH (TO GROUND)

2.CHECK AIRBAG MAIN HARNESS (FRONT SENSOR BUS RH) (SHORTED TO GROUND).

1) Turn the ignition switch to OFF, disconnect the battery ground cable, and wait for 60 seconds or more.

2) Remove the instrument panel lower cover and column cover, and disconnect the connectors (AB7) and (AB2).

3) Remove the console front panel and disconnect the connector (AB9).

4) Disconnect the connectors (AB6, AB17, AB18) from airbag control module.

5) Disconnect the connector (AB16) from the front sub sensor RH, and then connect the connector (1H) in the test harness H to connector (AB16).

6) Measure the resistance between connector in the test harness H and chassis ground.

Connector & terminal

(3H) No. 5 — Chassis ground:

(3H) No. 6 — Chassis ground:

Is the resistance 1 M- or more-

Diagnostic Chart with Trouble Code > DTC B16A2 SHORT IN FRONT SUB SENSOR RH (TO GROUND)

Replace the airbag main harness along with body harness.

3.CHECK FRONT SUB SENSOR RH.

1) Turn the ignition switch to OFF, disconnect the battery ground cable, and wait for 60 seconds or more.

2) Replace the front sub sensor RH by the front sub sensor LH. Front Sub Sensor > REMOVAL

3) Connect all connectors.

4) Clear the memory. Clear Memory Mode

5) Perform the Inspection Mode. Inspection Mode

6) Read the DTC. (Current malfunction) Read Diagnostic Trouble Code (DTC)

Is DTC B16A2 displayed-

Diagnostic Chart with Trouble Code > DTC B16A2 SHORT IN FRONT SUB SENSOR RH (TO GROUND)

Replace the front sub sensor RH. Front Sub Sensor > REMOVAL

4.CHECK AIRBAG CONTROL MODULE.

1) Turn the ignition switch to OFF, disconnect the battery ground cable, and wait for 60 seconds or more.

2) Restore the front sub sensors RH and LH back to their original position. Front Sub Sensor > REMOVAL

3) Connect all connectors.

4) Clear the memory. Clear Memory Mode

5) Perform the Inspection Mode. Inspection Mode

6) Read the DTC. (Current malfunction) Read Diagnostic Trouble Code (DTC)

Is DTC B16A2 displayed-

Replace the airbag control module. Airbag Control Module > REMOVAL

Diagnostic Chart with Trouble Code > DTC B16A2 SHORT IN FRONT SUB SENSOR RH (TO GROUND)

5.CHECK FOR ANY OTHER DTC ON DISPLAY.

Read the DTC. (Current malfunction) Read Diagnostic Trouble Code (DTC)

Is any other DTC displayed-

Check DTC using “List of Diagnostic Trouble Code”. List of Diagnostic Trouble Code (DTC) > LIST

Finish the diagnosis.

Dtc b16a3 short in front sub sensor rh (to +b)
DIAGNOSIS START CONDITION:Ignition voltage is 10 V to 16 V.DTC DETECTING CONDITION:Shorted between front sub sensor RH circuit and power supply circuitWIRING DIAGRAM:NOTE:For the coupling connector, r ...

Dtc b169f door sensor failure: abnormal pressure
DIAGNOSIS START CONDITION:Ignition voltage is 10 V to 16 V.DTC DETECTING CONDITION:Front door impact sensor detected value abnormal (difference of the detected pressure values between front door impac ...

Other materials:

Dtc p0335 crankshaft position sensor "a" circuit
DTC DETECTING CONDITION:Immediately at fault recognitionTROUBLE SYMPTOM:• Engine stalls.• Failure of engine to startCAUTION:After servicing or replacing faulty parts, perform Clear Memory Mode Clear Memory Mode > OPERATION, and Inspection Mode Inspection Mode > PROCEDURE.WIRING DIAGRAM ...

© 2017-2025 Copyright www.sulegacy.com