Honda Civic manuals

Subaru Legacy BN/BS (2015-2019) Service Manual: Dtc p1492 coil 1 egr "a" control circuit low

NOTE:

For the diagnostic procedure, refer to DTC P1498. Diagnostic Procedure with Diagnostic Trouble Code (DTC) > DTC P1498 COIL 4 EGR "A" CONTROL CIRCUIT LOW

1. OUTLINE OF DIAGNOSIS

Detects open or short circuit of EGR.

Judge as NG when the ECM output level differs from the actual terminal level.

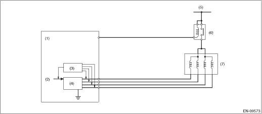
2. COMPONENT DESCRIPTION

(1)

Engine control module (ECM)

(4)

Switch circuit

(6)

Main relay

(2)

Computer unit (CPU)

(5)

Battery voltage

(7)

EGR control valve

(3)

Detecting circuit

3. EXECUTION CONDITION

Secondary Parameters

Execution condition

Battery voltage

≥ 10.9 V

EGR drive signal

OFF

4. GENERAL DRIVING CYCLE

Perform the diagnosis continuously after the enable conditions have been established.

5. DIAGNOSTIC METHOD

If the duration of time while the following conditions are met is longer than the time indicated, judge as NG.

Judgment Value

Malfunction Criteria

Threshold Value

EGR terminal voltage

≤ Battery voltage - 0.34

Time Needed for Diagnosis: 2500 ms

Malfunction Indicator Light Illumination: Illuminates as soon as a malfunction occurs.

Dtc p1493 coil 1 egr "a" control circuit high
NOTE:For the diagnostic procedure, refer to DTC P1499. Diagnostic Procedure with Diagnostic Trouble Code (DTC) > DTC P1499 COIL 4 EGR "A" CONTROL CIRCUIT HIGH1. OUTLINE OF DIAGNOSISDetects open or sh ...

Dtc p1451 evap system clog detected (pipe)
DTC DETECTING CONDITION:Detected when two consecutive driving cycles with fault occur.CAUTION:After servicing or replacing faulty parts, perform Clear Memory Mode Clear Memory Mode > OPERATION, and I ...

Other materials:

Dtc p0606 control module processor
DTC DETECTING CONDITION:Immediately at fault recognitionTROUBLE SYMPTOM:• Improper idling• Poor driving performanceCAUTION:After servicing or replacing faulty parts, perform Clear Memory Mode Clear Memory Mode > OPERATION, and Inspection Mode Inspection Mode > PROCEDURE.WIRING DIAGRAM: ...

© 2017-2026 Copyright www.sulegacy.com