Honda Civic manuals

Subaru Legacy BN/BS (2015-2019) Service Manual: Dtc b14a6 refrigerant flow sensor circuit short-circuit

DTC DETECTING CONDITION:

The voltage of the refrigerant flow sensor signal line decreased to 0.3 V or less.

Short-circuit in refrigerant flow sensor

TROUBLE SYMPTOM:

A/C does not function because refrigerant flow amount cannot be measured.

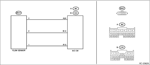
WIRING DIAGRAM:

NOTE:

For the coupling connector, refer to “WIRING SYSTEM”.

Air conditioning system Air Conditioning System > WIRING DIAGRAM

STEPCHECKYESNO

1.CHECK CONNECTOR.

1) Check connecting condition of the A/C CM connector, refrigerant flow sensor connector and coupling connector.

2) Read the DTC using Subaru Select Monitor. Read Diagnostic Trouble Code (DTC)

Is B14A6 displayed-

Diagnostic Procedure with Diagnostic Trouble Code (DTC) > DTC B14A6 REFRIGERANT FLOW SENSOR CIRCUIT SHORT-CIRCUIT

Even if DTC is displayed, the circuit has returned to a normal condition at this time. Reproduce the failure, and then perform the diagnosis again.

NOTE:

In this case, temporary poor contact of connector, temporary open or short circuit of harness may be the cause.

2.CHECK REFRIGERANT FLOW SENSOR.

1) Disconnect the refrigerant flow sensor connector.

2) Read the DTC using Subaru Select Monitor. Read Diagnostic Trouble Code (DTC)

Is B14A5 displayed-

Replace the compressor. Compressor > REMOVAL

Diagnostic Procedure with Diagnostic Trouble Code (DTC) > DTC B14A6 REFRIGERANT FLOW SENSOR CIRCUIT SHORT-CIRCUIT

3.CHECK HARNESS (SHORTED BETWEEN LINES AND SHORTED TO GROUND).

1) Disconnect the A/C CM connector.

2) Using a tester, check continuity between terminals.

Connector & terminal

(B507) No. 2 — (B507) No. 3:
(B507) No. 3 — Chassis ground:

Is there continuity-

Repair or replace the short circuit of the harness.

Replace the A/C CM. Control Unit > REMOVAL

Dtc b14a7 variable solenoid valve circuit
DTC DETECTING CONDITION:Variable flow change solenoid valve circuit is open or shortedTROUBLE SYMPTOM:Refrigerant pressure cannot be changed.WIRING DIAGRAM:Air conditioning system Air Conditioning Sy ...

Dtc b14a5 refrigerant flow sensor circuit open
DTC DETECTING CONDITION:• The voltage of the refrigerant flow sensor signal line increased to 4.7 V or more.• Open circuit in refrigerant flow sensorTROUBLE SYMPTOM:A/C does not function b ...

Other materials:

Dtc b1875 short in front seat cushion airbag lh
DIAGNOSIS START CONDITION:Ignition voltage is 10 V to 16 V.DTC DETECTING CONDITION:Shorted between +/− lines (shorted between rear harness lines, shorted between front seat cushion airbag LH lines, shorted between airbag CM internal lines)CAUTION:Before performing diagnosis, refer to “CA ...

© 2017-2026 Copyright www.sulegacy.com