Honda Civic manuals

Subaru Legacy BN/BS (2015-2019) Service Manual: Dtc b14a5 refrigerant flow sensor circuit open

DTC DETECTING CONDITION:

The voltage of the refrigerant flow sensor signal line increased to 4.7 V or more.

Open circuit in refrigerant flow sensor

TROUBLE SYMPTOM:

A/C does not function because refrigerant flow amount cannot be measured.

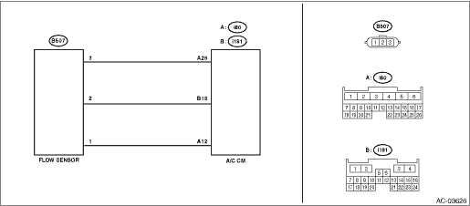
WIRING DIAGRAM:

NOTE:

For the coupling connector, refer to “WIRING SYSTEM”.

Air conditioning system Air Conditioning System > WIRING DIAGRAM

STEPCHECKYESNO

1.CHECK CONNECTOR.

1) Check connecting condition of the A/C CM connector, refrigerant flow sensor connector and coupling connector.

2) Read the DTC using Subaru Select Monitor. Read Diagnostic Trouble Code (DTC)

Is B14A5 displayed-

Diagnostic Procedure with Diagnostic Trouble Code (DTC) > DTC B14A5 REFRIGERANT FLOW SENSOR CIRCUIT OPEN

Even if DTC is displayed, the circuit has returned to a normal condition at this time. Reproduce the failure, and then perform the diagnosis again.

NOTE:

In this case, temporary poor contact of connector, temporary open or short circuit of harness may be the cause.

2.CHECK REFRIGERANT FLOW SENSOR.

1) Disconnect the refrigerant flow sensor connector.

2) Short No. 2 and No. 3 of the refrigerant flow sensor connector (B507).

3) Read the DTC using Subaru Select Monitor. Read Diagnostic Trouble Code (DTC)

Is B14A6 displayed-

Replace the compressor. Compressor > REMOVAL

Diagnostic Procedure with Diagnostic Trouble Code (DTC) > DTC B14A5 REFRIGERANT FLOW SENSOR CIRCUIT OPEN

3.CHECK HARNESS.

1) Restore the temporary shorted lines made in step 2.

2) Turn the ignition switch to ON.

3) Using the tester, measure the voltage between terminals.

Connector & terminal

(B507) No. 1 (+) — No. 2 (−):

Is the voltage 4.5 — 5.0 V-

Diagnostic Procedure with Diagnostic Trouble Code (DTC) > DTC B14A5 REFRIGERANT FLOW SENSOR CIRCUIT OPEN

Repair or replace the open circuit of harness.

4.CHECK HARNESS (OPEN CIRCUIT).

1) Disconnect the A/C CM connector.

2) Using a tester, check continuity between terminals.

Connector & terminal

(B507) No. 3 — (i80) No. 26:

(B507) No. 2 — (i181) No. 18:

(B507) No. 1 — (i80) No. 12:

Is there continuity-

Replace the A/C CM. Control Unit > REMOVAL

Repair or replace the open circuit of harness.

Dtc b14a6 refrigerant flow sensor circuit short-circuit
DTC DETECTING CONDITION:• The voltage of the refrigerant flow sensor signal line decreased to 0.3 V or less.• Short-circuit in refrigerant flow sensorTROUBLE SYMPTOM:A/C does not function ...

Dtc b14a4 refrigerant pressure sensor circuit short-circuit
DTC DETECTING CONDITION:Refrigerant pressure sensor circuit is shorted.TROUBLE SYMPTOM:Compressor does not operate. (Variable compressor)WIRING DIAGRAM:NOTE:For the coupling connector, refer to &ldquo ...

Other materials:

Dtc b27a7 trunk/rear gate internal antenna open
DTC DETECTING CONDITION:When open circuit occurs in the harness between keyless access CM and rear interior antenna.TROUBLE SYMPTOM:Keyless access system does not function. (when the access key is in the rear area of the passenger room (in the luggage room or trunk))CAUTION:For replacement procedure ...

© 2017-2026 Copyright www.sulegacy.com