Honda Civic manuals

Subaru Legacy BN/BS (2015-2019) Service Manual: Dtc b14a4 refrigerant pressure sensor circuit short-circuit

DTC DETECTING CONDITION:

Refrigerant pressure sensor circuit is shorted.

TROUBLE SYMPTOM:

Compressor does not operate. (Variable compressor)

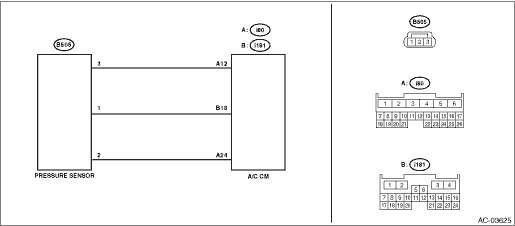
WIRING DIAGRAM:

NOTE:

For the coupling connector, refer to “WIRING SYSTEM”.

Air conditioning system Air Conditioning System > WIRING DIAGRAM

STEPCHECKYESNO

1.CHECK CONNECTOR.

1) Check connecting condition of the A/C CM connector, refrigerant pressure sensor connector and coupling connector.

2) Read the DTC using Subaru Select Monitor. Read Diagnostic Trouble Code (DTC)

Is B14A4 displayed-

Diagnostic Procedure with Diagnostic Trouble Code (DTC) > DTC B14A4 REFRIGERANT PRESSURE SENSOR CIRCUIT SHORT-CIRCUIT

Even if DTC is displayed, the circuit has returned to a normal condition at this time. Reproduce the failure, and then perform the diagnosis again.

NOTE:

In this case, temporary poor contact of connector, temporary open or short circuit of harness may be the cause.

2.CHECK REFRIGERANT PRESSURE SENSOR.

1) Disconnect the refrigerant pressure sensor.

2) Read the DTC of the A/C CM using the Subaru Select Monitor. Read Diagnostic Trouble Code (DTC)

Is B14A3 displayed-

Replace the refrigerant pressure sensor. Hose and Pipe > REMOVAL

Diagnostic Procedure with Diagnostic Trouble Code (DTC) > DTC B14A4 REFRIGERANT PRESSURE SENSOR CIRCUIT SHORT-CIRCUIT

3.CHECK HARNESS (SHORTED BETWEEN LINES AND SHORTED TO GROUND).

1) Disconnect the connector from A/C CM.

2) Using a tester, check continuity between terminals.

Connector & terminal

(B505) No. 1 — No. 2:

(B505) No. 2 — Chassis ground:

Is there continuity-

Repair or replace the short circuit of the harness.

Replace the A/C CM. Control Unit > REMOVAL

Dtc b14a5 refrigerant flow sensor circuit open
DTC DETECTING CONDITION:• The voltage of the refrigerant flow sensor signal line increased to 4.7 V or more.• Open circuit in refrigerant flow sensorTROUBLE SYMPTOM:A/C does not function b ...

Dtc b14a3 refrigerant pressure sensor circuit open
DTC DETECTING CONDITION:Refrigerant pressure sensor circuit is open.TROUBLE SYMPTOM:Compressor does not operate. (Variable compressor)WIRING DIAGRAM:NOTE:For the coupling connector, refer to “WI ...

Other materials:

Basic diagnostic procedure procedure
STEPCHECKYESNO1.CHECK WARNING LIGHT.Check whether the airbag warning light in the combination meter is lit.Does the airbag warning light illuminate- Basic Diagnostic Procedure > PROCEDUREPerform the diagnosis according to phenomenon of the problem.2.READ DTC.1) Turn the ignition switch to OFF.2) Con ...

© 2017-2026 Copyright www.sulegacy.com