Honda Civic manuals

Subaru Legacy BN/BS (2015-2019) Service Manual: Dtc b14a3 refrigerant pressure sensor circuit open

DTC DETECTING CONDITION:

Refrigerant pressure sensor circuit is open.

TROUBLE SYMPTOM:

Compressor does not operate. (Variable compressor)

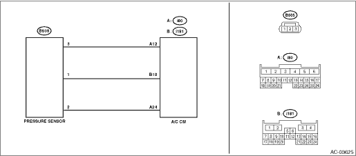
WIRING DIAGRAM:

NOTE:

For the coupling connector, refer to “WIRING SYSTEM”.

Air conditioning system Air Conditioning System > WIRING DIAGRAM

STEPCHECKYESNO

1.CHECK CONNECTOR.

1) Check connecting condition of the A/C CM connector, refrigerant pressure sensor connector and coupling connector.

2) Read the DTC using Subaru Select Monitor. Read Diagnostic Trouble Code (DTC)

Is B14A3 displayed-

Diagnostic Procedure with Diagnostic Trouble Code (DTC) > DTC B14A3 REFRIGERANT PRESSURE SENSOR CIRCUIT OPEN

Even if DTC is displayed, the circuit has returned to a normal condition at this time. Reproduce the failure, and then perform the diagnosis again.

NOTE:

In this case, temporary poor contact of connector, temporary open or short circuit of harness may be the cause.

2.CHECK PRESSURE SENSOR.

1) Disconnect the refrigerant pressure sensor.

2) Short No. 1 and No. 2 of B505 connector.

3) Read the DTC of the A/C CM using the Subaru Select Monitor. Read Diagnostic Trouble Code (DTC)

Is B14A4 displayed-

Replace the refrigerant pressure sensor. Hose and Pipe > REMOVAL

Diagnostic Procedure with Diagnostic Trouble Code (DTC) > DTC B14A3 REFRIGERANT PRESSURE SENSOR CIRCUIT OPEN

3.CHECK HARNESS.

1) Restore the temporary shorted lines made in step 2.

2) Turn the ignition switch to ON.

3) Using the tester, measure the voltage between terminals.

Connector & terminal

(B505) No. 3 (+) — No. 1 (−):

Is the voltage 4.5 — 5.0 V-

Diagnostic Procedure with Diagnostic Trouble Code (DTC) > DTC B14A3 REFRIGERANT PRESSURE SENSOR CIRCUIT OPEN

Repair or replace the open circuit of harness.

4.CHECK HARNESS (OPEN CIRCUIT).

1) Disconnect the connector from A/C CM.

2) Using a tester, check continuity between terminals.

Connector & terminal

(B505) No. 1 — (i181) No. 18:

(B505) No. 2 — (i80) No. 24:

(B505) No. 3 — (i80) No. 12:

Is there continuity-

Replace the A/C CM. Control Unit > REMOVAL

Repair or replace the open circuit of harness.

Dtc b14a4 refrigerant pressure sensor circuit short-circuit
DTC DETECTING CONDITION:Refrigerant pressure sensor circuit is shorted.TROUBLE SYMPTOM:Compressor does not operate. (Variable compressor)WIRING DIAGRAM:NOTE:For the coupling connector, refer to &ldquo ...

Dtc b14a2 sunload sensor circuit short-circuit
DTC DETECTING CONDITION:Short circuit in the sunload sensor is detected for 3 seconds or more.TROUBLE SYMPTOM:Operation is performed as no sunload.WIRING DIAGRAM:Air conditioning system Air Condition ...

Other materials:

Installation
1. FRONT BRAKE HOSE1. Secure the brake hose to the brake hose mount part of strut COMPL.Tightening torque:Brake hose: 33 N·m (3.4 kgf-m, 24.3 ft-lb)2. Connect the brake hose to the caliper body assembly using a new gasket.Tightening torque:Union bolt: 26 N·m (2.7 kgf-m, 19.2 ft-lb)3. P ...

© 2017-2026 Copyright www.sulegacy.com