Honda Civic manuals

Subaru Legacy BN/BS (2015-2019) Service Manual: Dtc b14a2 sunload sensor circuit short-circuit

DTC DETECTING CONDITION:

Short circuit in the sunload sensor is detected for 3 seconds or more.

TROUBLE SYMPTOM:

Operation is performed as no sunload.

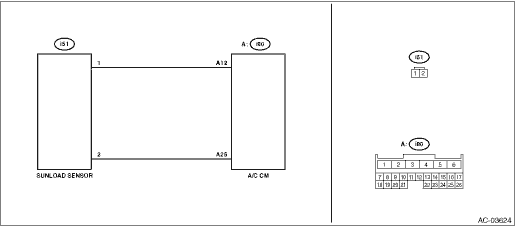
WIRING DIAGRAM:

Air conditioning system Air Conditioning System > WIRING DIAGRAM

STEPCHECKYESNO

1.CHECK CONNECTOR.

1) Check connecting condition of the A/C CM connector and sunload sensor connector.

2) Read the DTC using Subaru Select Monitor. Read Diagnostic Trouble Code (DTC)

Is B14A2 displayed-

Diagnostic Procedure with Diagnostic Trouble Code (DTC) > DTC B14A2 SUNLOAD SENSOR CIRCUIT SHORT-CIRCUIT

Even if DTC is displayed, the circuit has returned to a normal condition at this time. Reproduce the failure, and then perform the diagnosis again.

NOTE:

In this case, temporary poor contact of connector, temporary open or short circuit of harness may be the cause.

2.CHECK SUNLOAD SENSOR.

1) Disconnect the sunload sensor.

2) Read the DTC using Subaru Select Monitor. Read Diagnostic Trouble Code (DTC)

Is B14A1 displayed-

Replace the sunload sensor. Sunload Sensor (Auto A/C Model) > REMOVAL

Diagnostic Procedure with Diagnostic Trouble Code (DTC) > DTC B14A2 SUNLOAD SENSOR CIRCUIT SHORT-CIRCUIT

3.CHECK HARNESS.

1) Turn the ignition switch to ON.

2) Using the tester, measure the voltage between terminals.

Connector & terminal

(i51) No. 2 (+) — No. 1 (−):

Is the voltage 4.5 — 5.0 V-

Check the connection of the sunload sensor circuit.

Diagnostic Procedure with Diagnostic Trouble Code (DTC) > DTC B14A2 SUNLOAD SENSOR CIRCUIT SHORT-CIRCUIT

4.CHECK HARNESS (SHORTED BETWEEN LINES).

1) Disconnect the connector from A/C CM.

2) Using a tester, check continuity between terminals.

Connector & terminal

(i51) No. 1 — No. 2:

Is there continuity-

Repair or replace the short circuit of the harness.

Replace the A/C CM. Control Unit > REMOVAL

Dtc b14a3 refrigerant pressure sensor circuit open
DTC DETECTING CONDITION:Refrigerant pressure sensor circuit is open.TROUBLE SYMPTOM:Compressor does not operate. (Variable compressor)WIRING DIAGRAM:NOTE:For the coupling connector, refer to “WI ...

Dtc b14a1 sunload sensor circuit low/open
DTC DETECTING CONDITION:Open circuit in the sunload sensor is detected for 3 seconds or more. (Displayed for current malfunction)NOTE:When the sunload sensor check is performed indoors or in the shade ...

Other materials:

Dtc p2419 evap system switching valve control circuit low
DTC DETECTING CONDITION:Immediately at fault recognitionCAUTION:After servicing or replacing faulty parts, perform Clear Memory Mode Clear Memory Mode > OPERATION, and Inspection Mode Inspection Mode > PROCEDURE.WIRING DIAGRAM:• Engine Electrical System ENGINE TYPE EZ (WITHOUT PUSH BUTTON ST ...

© 2017-2025 Copyright www.sulegacy.com