Honda Civic manuals

Subaru Legacy BN/BS (2015-2019) Service Manual: Dtc b14a1 sunload sensor circuit low/open

DTC DETECTING CONDITION:

Open circuit in the sunload sensor is detected for 3 seconds or more. (Displayed for current malfunction)

NOTE:

When the sunload sensor check is performed indoors or in the shade, it could be diagnosed as having an open circuit. Always check the sunload sensor in direct sunlight.

TROUBLE SYMPTOM:

Operation is performed as no sunload.

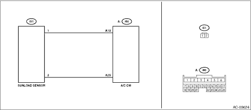
WIRING DIAGRAM:

Air conditioning system Air Conditioning System > WIRING DIAGRAM

STEPCHECKYESNO

1.CHECK CONNECTOR.

1) Check connecting condition of the A/C CM connector and sunload sensor connector.

2) Read the DTC using Subaru Select Monitor. Read Diagnostic Trouble Code (DTC)

Is B14A1 displayed-

Diagnostic Procedure with Diagnostic Trouble Code (DTC) > DTC B14A1 SUNLOAD SENSOR CIRCUIT LOW/OPEN

Even if DTC is displayed, the circuit has returned to a normal condition at this time. Reproduce the failure, and then perform the diagnosis again.

NOTE:

In this case, temporary poor contact of connector, temporary open or short circuit of harness may be the cause.

2.CHECK SUNLOAD SENSOR.

1) Disconnect the sunload sensor.

2) Short the connector.

3) Read the DTC using Subaru Select Monitor. Read Diagnostic Trouble Code (DTC)

Is B14A2 displayed-

Replace the sunload sensor. Sunload Sensor (Auto A/C Model) > REMOVAL

Diagnostic Procedure with Diagnostic Trouble Code (DTC) > DTC B14A1 SUNLOAD SENSOR CIRCUIT LOW/OPEN

3.CHECK HARNESS.

1) Restore the temporary shorted lines made in step 2.

2) Turn the ignition switch to ON.

3) Using the tester, measure the voltage between terminals.

Connector & terminal

(i51) No. 2 (+) — No. 1 (−):

Is the voltage 4.5 — 5.0 V-

Diagnostic Procedure with Diagnostic Trouble Code (DTC) > DTC B14A1 SUNLOAD SENSOR CIRCUIT LOW/OPEN

Repair or replace the open circuit of the harness.

4.CHECK HARNESS (OPEN CIRCUIT).

1) Disconnect the connector from A/C CM.

2) Using a tester, check continuity between terminals.

Connector & terminal

(i51) No. 1 — (i80) No. 12:

(i51) No. 2 — (i80) No. 25:

Is there continuity-

Replace the A/C CM. Control Unit > REMOVAL

Repair or replace the open circuit of harness.

Dtc b14a2 sunload sensor circuit short-circuit
DTC DETECTING CONDITION:Short circuit in the sunload sensor is detected for 3 seconds or more.TROUBLE SYMPTOM:Operation is performed as no sunload.WIRING DIAGRAM:Air conditioning system Air Condition ...

Dtc b144a rear vent door actuator circuit stuck
DTC DETECTING CONDITION:Rear vent actuator is locked.TROUBLE SYMPTOM:Unable to control the rear vent temperature.WIRING DIAGRAM:Air conditioning system Air Conditioning System > WIRING DIAGRAMSTEPCHE ...

Other materials:

Dtc b16a3 short in front sub sensor rh (to +b)
DIAGNOSIS START CONDITION:Ignition voltage is 10 V to 16 V.DTC DETECTING CONDITION:Shorted between front sub sensor RH circuit and power supply circuitWIRING DIAGRAM:NOTE:For the coupling connector, refer to “WIRING SYSTEM”.Airbag system Airbag System > WIRING DIAGRAMSTEPCHECKYESNO1.CHE ...

© 2017-2026 Copyright www.sulegacy.com