Honda Civic manuals

Subaru Legacy BN/BS (2015-2019) Service Manual: Dtc b1618 front sub sensor lh initialization error

DIAGNOSIS START CONDITION:

Ignition voltage is 10 V to 16 V.

DTC DETECTING CONDITION:

Front sub sensor LH unit malfunction (sensor type abnormal, sensor unit initialization error)

CAUTION:

Before performing diagnosis, refer to “CAUTION” in “General Description”. General Description > CAUTION

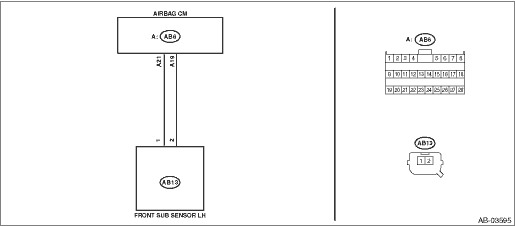
WIRING DIAGRAM:

NOTE:

For the coupling connector, refer to “WIRING SYSTEM”.

Airbag system Airbag System > WIRING DIAGRAM

STEPCHECKYESNO

1.CHECK POOR CONTACT OF CONNECTORS.

Check for poor contact of the connectors (AB6, AB13) between the airbag control module and the front sub sensor LH.

Is there poor contact-

Replace the airbag main harness along with body harness.

Diagnostic Chart with Trouble Code > DTC B1618 FRONT SUB SENSOR LH INITIALIZATION ERROR

2.CHECK FRONT SUB SENSOR LH.

1) Turn the ignition switch to OFF, disconnect the battery ground cable, and wait for 60 seconds or more.

2) Replace the front sub sensor LH by the front sub sensor RH. Front Sub Sensor > REMOVAL

3) Connect all connectors.

4) Clear the memory. Clear Memory Mode

5) Perform the Inspection Mode. Inspection Mode

6) Read the DTC. (Current malfunction) Read Diagnostic Trouble Code (DTC)

Is DTC B1618 displayed-

Diagnostic Chart with Trouble Code > DTC B1618 FRONT SUB SENSOR LH INITIALIZATION ERROR

Replace the front sub sensor LH. Front Sub Sensor > REMOVAL

3.CHECK AIRBAG CONTROL MODULE.

1) Turn the ignition switch to OFF, disconnect the battery ground cable, and wait for 60 seconds or more.

2) Restore the front sub sensors LH and RH back to their original position. Front Sub Sensor > REMOVAL

3) Connect all connectors.

4) Clear the memory. Clear Memory Mode

5) Perform the Inspection Mode. Inspection Mode

6) Read the DTC. (Current malfunction) Read Diagnostic Trouble Code (DTC)

Is DTC B1618 displayed-

Replace the airbag control module. Airbag Control Module > REMOVAL

Diagnostic Chart with Trouble Code > DTC B1618 FRONT SUB SENSOR LH INITIALIZATION ERROR

4.CHECK FOR ANY OTHER DTC ON DISPLAY.

Read the DTC. (Current malfunction) Read Diagnostic Trouble Code (DTC)

Is any other DTC displayed-

Check DTC using “List of Diagnostic Trouble Code”. List of Diagnostic Trouble Code (DTC)

Finish the diagnosis.

Dtc b1620 side airbag sensor rh failure
DIAGNOSIS START CONDITION:Ignition voltage is 10 V to 16 V.DTC DETECTING CONDITION:Side airbag sensor RH unit internal malfunctionWhen DTC B1620 is displayed, the circuit within the side airbag sensor ...

Dtc b1617 front sub sensor lh lost communication
DIAGNOSIS START CONDITION:Ignition voltage is 10 V to 16 V.DTC DETECTING CONDITION:Front sub sensor LH communication error (open/short circuit or connector connection failure between airbag CM and sen ...

Other materials:

Dtc p059a active grille air shutter "a" position sensor circuit
DTC DETECTING CONDITION:Immediately at fault recognitionCAUTION:After servicing or replacing faulty parts, perform Clear Memory Mode Clear Memory Mode > OPERATION, and Inspection Mode Inspection Mode > PROCEDURE.STEPCHECKYESNO1.CHECK ACTIVE GRILLE SHUTTER.Check the area around the active grille sh ...

© 2017-2026 Copyright www.sulegacy.com