Honda Civic manuals

Subaru Legacy BN/BS (2015-2019) Service Manual: Dtc b16a7 short in front sub sensor lh (to ground)

DIAGNOSIS START CONDITION:

Ignition voltage is 10 V to 16 V.

DTC DETECTING CONDITION:

Shorted between front sub sensor LH circuit and GND circuit

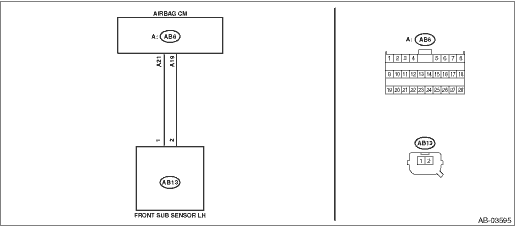
WIRING DIAGRAM:

NOTE:

For the coupling connector, refer to “WIRING SYSTEM”.

Airbag system Airbag System > WIRING DIAGRAM

STEPCHECKYESNO

1.CHECK POOR CONTACT OF CONNECTORS.

Check for poor contact of the connectors between the airbag control module and the front sub sensor LH.

Is there poor contact-

Replace the airbag main harness along with body harness.

Diagnostic Chart with Trouble Code > DTC B16A7 SHORT IN FRONT SUB SENSOR LH (TO GROUND)

2.CHECK AIRBAG MAIN HARNESS (FRONT SENSOR BUS LH) (SHORTED TO GROUND).

1) Turn the ignition switch to OFF, disconnect the battery ground cable, and wait for 60 seconds or more.

2) Remove the instrument panel lower cover and column cover, and disconnect the connectors (AB7) and (AB2).

3) Remove the console front panel and disconnect the connector (AB9).

4) Disconnect the connectors (AB6, AB17, AB18) from airbag control module.

5) Disconnect the connector (AB13) from the front sub sensor LH, and then connect the connector (1H) in the test harness H to connector (AB13).

6) Measure the resistance between connector (3H) in the test harness H and chassis ground.

Connector & terminal

(3H) No. 5 — Chassis ground:

(3H) No. 6 — Chassis ground:

Is the resistance 1 M- or more-

Diagnostic Chart with Trouble Code > DTC B16A7 SHORT IN FRONT SUB SENSOR LH (TO GROUND)

Replace the airbag main harness along with body harness.

3.CHECK FRONT SUB SENSOR LH.

1) Turn the ignition switch to OFF, disconnect the battery ground cable, and wait for 60 seconds or more.

2) Replace the front sub sensor LH by the front sub sensor RH. Front Sub Sensor > REMOVAL

3) Connect all connectors.

4) Clear the memory. Clear Memory Mode

5) Perform the Inspection Mode. Inspection Mode

6) Read the DTC. (Current malfunction) Read Diagnostic Trouble Code (DTC)

Is DTC B16A7 displayed-

Diagnostic Chart with Trouble Code > DTC B16A7 SHORT IN FRONT SUB SENSOR LH (TO GROUND)

Replace the front sub sensor LH. Front Sub Sensor > REMOVAL

4.CHECK AIRBAG CONTROL MODULE.

1) Turn the ignition switch to OFF, disconnect the battery ground cable, and wait for 60 seconds or more.

2) Restore the front sub sensors RH and LH back to their original position. Front Sub Sensor > REMOVAL

3) Connect all connectors.

4) Clear the memory. Clear Memory Mode

5) Perform the Inspection Mode. Inspection Mode

6) Read the DTC. (Current malfunction) Read Diagnostic Trouble Code (DTC)

Is DTC B16A7 displayed-

Replace the airbag control module. Airbag Control Module > REMOVAL

Diagnostic Chart with Trouble Code > DTC B16A7 SHORT IN FRONT SUB SENSOR LH (TO GROUND)

5.CHECK FOR ANY OTHER DTC ON DISPLAY.

Read the DTC. (Current malfunction) Read Diagnostic Trouble Code (DTC)

Is any other DTC displayed-

Check DTC using “List of Diagnostic Trouble Code”. List of Diagnostic Trouble Code (DTC) > LIST

Finish the diagnosis.

Dtc b16a8 short in front sub sensor lh (to +b)
DIAGNOSIS START CONDITION:Ignition voltage is 10 V to 16 V.DTC DETECTING CONDITION:Shorted between front sub sensor LH circuit and power supply circuitWIRING DIAGRAM:NOTE:For the coupling connector, r ...

Dtc b16a4 short in front sub sensor rh
DIAGNOSIS START CONDITION:Ignition voltage is 10 V to 16 V.DTC DETECTING CONDITION:Short circuit between front sub sensor RH circuit and other sensor circuitWIRING DIAGRAM:NOTE:For the coupling connec ...

Other materials:

Dtc p0198 engine oil temperature sensor "a" circuit high
DTC DETECTING CONDITION:Immediately at fault recognitionTROUBLE SYMPTOM:• Hard to start• Improper idling• Poor driving performanceCAUTION:After servicing or replacing faulty parts, perform Clear Memory Mode Clear Memory Mode > OPERATION, and Inspection Mode Inspection Mode > PROC ...

© 2017-2026 Copyright www.sulegacy.com