Honda Civic manuals

Subaru Legacy BN/BS (2015-2019) Service Manual: Dtc b16a9 short in front sub sensor lh

DIAGNOSIS START CONDITION:

Ignition voltage is 10 V to 16 V.

DTC DETECTING CONDITION:

Short circuit between front sub sensor LH circuit and other sensor circuit

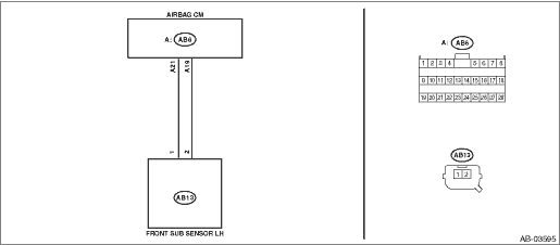
WIRING DIAGRAM:

NOTE:

For the coupling connector, refer to “WIRING SYSTEM”.

Airbag system Airbag System > WIRING DIAGRAM

STEPCHECKYESNO

1.CHECK POOR CONTACT OF CONNECTORS.

Check for poor contact of the connectors between the airbag control module and the front sub sensor LH.

Is there poor contact-

Replace the airbag main harness along with body harness.

Diagnostic Chart with Trouble Code > DTC B16A9 SHORT IN FRONT SUB SENSOR LH

2.CHECK AIRBAG MAIN HARNESS (FRONT SENSOR BUS LH) (SHORTED BETWEEN LINES).

1) Turn the ignition switch to OFF, disconnect the battery ground cable, and wait for 60 seconds or more.

2) Remove the instrument panel lower cover and column cover, and disconnect the connectors (AB7) and (AB2).

3) Remove the console front panel and disconnect the connector (AB9).

4) Disconnect the connectors (AB6, AB17, AB18) from airbag control module.

5) Connect the connector (1AD) in test harness AD AV to the connectors (AB6, AB17, AB18).

6) Connect the connector (2AD) in test harness AD AV and the connector (1AG) in test harness AG.

7) Disconnect the connector (AB13) from the front sub sensor LH, and then connect the connector (1H) in the test harness H to connector (AB13).

8) Measure the resistance between connector (4AG) in the test harness AG and all connector terminals in the test harness AG.

Connector & terminal

(4AG) No. 7 — All terminals in test harness AG:

(4AG) No. 9 — All terminals in test harness AG:

Is the resistance 1 M- or more-

Replace the airbag control module. Airbag Control Module > REMOVAL

Replace the faulty harness. (Replace the airbag main harness along with body harness. Or replace the airbag rear harness along with body harness.)

Dtc b16b2 short in side satellite sensor bus rh (to ground)
DIAGNOSIS START CONDITION:Ignition voltage is 10 V to 16 V.DTC DETECTING CONDITION:Shorted between side sensor RH circuit and GND circuitWIRING DIAGRAM:NOTE:For the coupling connector, refer to &ldquo ...

Dtc b16a8 short in front sub sensor lh (to +b)
DIAGNOSIS START CONDITION:Ignition voltage is 10 V to 16 V.DTC DETECTING CONDITION:Shorted between front sub sensor LH circuit and power supply circuitWIRING DIAGRAM:NOTE:For the coupling connector, r ...

Other materials:

Basic diagnostic procedure procedure
STEPCHECKYESNO1.PERFORM CUSTOMER INTERVIEW.Using the Check List for Interview, ask the customer the condition of how the trouble occurred.Did you interview the customer- Basic Diagnostic Procedure > PROCEDUREInterview the customer. Check List for Interview > CHECK2.CHECK LAN SYSTEM.Inspect LAN syst ...

© 2017-2025 Copyright www.sulegacy.com