Honda Civic manuals

Subaru Legacy BN/BS (2015-2019) Service Manual: Dtc b278a push engine switch power supply circuit

DTC DETECTING CONDITION:

When the power supply circuit of the push button ignition switch is shorted to ground.

TROUBLE SYMPTOM:

Engine does not start even when the access key is pointed toward the vehicle.

The keyless access system function does not operate.

CAUTION:

For replacement procedure of keyless access CM, refer to the “REGISTRATION MANUAL FOR IMMOBILIZER” provided as a separate volume.

WIRING DIAGRAM:

Immobilizer system Immobilizer System > WIRING DIAGRAM

STEPCHECKYESNO

1.CHECK KEYLESS ACCESS CM.

1) Turn the ignition switch to OFF.

2) Take the access key out of the passenger room.

3) Push the push button ignition switch. Within 30 seconds, use oscilloscope to measure the waveform between connectors.

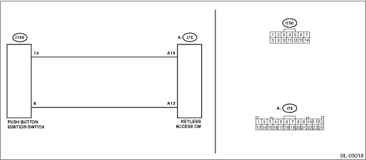
Connector & terminal

(i150) No. 14 — (i150) No. 8:

Is the waveform shown in the left column displayed-

Replace the push button ignition switch. Push Button Ignition Switch

Diagnostic Procedure with Diagnostic Trouble Code (DTC) > DTC B278A PUSH ENGINE SWITCH POWER SUPPLY CIRCUIT

2.CHECK HARNESS (OPEN CIRCUIT).

1) Disconnect the keyless access CM connector.

2) Disconnect the push button ignition switch connector.

3) Using the tester, measure the resistance between terminals.

Connector & terminal

(i150) No. 8 — (i75) No. 13:

(i150) No. 14 — (i75) No. 15:

Is the resistance less than 1 --

Diagnostic Procedure with Diagnostic Trouble Code (DTC) > DTC B278A PUSH ENGINE SWITCH POWER SUPPLY CIRCUIT

Repair or replace the open circuit of harness.

3.CHECK HARNESS (GROUND SHORT CIRCUIT).

Using a tester, measure the resistance between the keyless access CM connector and chassis ground.

Connector & terminal

(i75) No. 15 — Chassis ground:

Is the resistance 10 k- or more-

Diagnostic Procedure with Diagnostic Trouble Code (DTC) > DTC B278A PUSH ENGINE SWITCH POWER SUPPLY CIRCUIT

Repair or replace the short circuit of the harness.

4.CHECK HARNESS.

Using a tester, measure the resistance between the keyless access CM connector and chassis ground.

Connector & terminal

(i75) No. 13 — Chassis ground:

Is the resistance 1 - or less-

Diagnostic Procedure with Diagnostic Trouble Code (DTC) > DTC B278A PUSH ENGINE SWITCH POWER SUPPLY CIRCUIT

Repair or replace the harness.

5.CHECK DTC.

1) Using the Subaru Select Monitor, clear the memory. Clear Memory Mode

2) Read DTC using the Subaru Select Monitor. Read Diagnostic Trouble Code (DTC)

Is DTC B278A displayed-

Replace the keyless access CM. Keyless Access CM

Even if DTC is displayed, the circuit has returned to a normal condition at this time. Reproduce the failure, and then perform the diagnosis again.

NOTE:

In this case, temporary poor contact of connector, temporary open or short circuit of harness may be the cause.

Dtc b278d id code box judgment circuit
DTC DETECTING CONDITION:When the evaluation of the ID code box setting circuit via the hard wire is judged as none, ID code box communication is received. (at new registration)TROUBLE SYMPTOM:Initial ...

Dtc b2790 id code box circuit
DTC DETECTING CONDITION:An error has occurred inside the ID code box.TROUBLE SYMPTOM:Engine will not start.CAUTION:For replacement procedure of ID code box, refer to the “REGISTRATION MANUAL FOR ...

Other materials:

Dtc p0113 intake air temperature sensor 1 circuit high bank 1
DTC DETECTING CONDITION:Immediately at fault recognitionTROUBLE SYMPTOM:• Improper idling• Poor driving performanceCAUTION:After servicing or replacing faulty parts, perform Clear Memory Mode Clear Memory Mode > OPERATION, and Inspection Mode Inspection Mode > PROCEDURE.WIRING DIAGRAM: ...

© 2017-2025 Copyright www.sulegacy.com