Honda Civic manuals

Subaru Legacy BN/BS (2015-2019) Service Manual: Dtc b28b8 eyesight steering switch 1

Detected when EyeSight steering switch is not installed or has malfunction, or when the harness is faulty or open-circuited or in stuck ON condition.

DTC DETECTING CONDITION:

Wiring of the EyeSight steering switch is not connected.

EyeSight steering switch circuit is open.

EyeSight steering switch circuit stays ON.

TROUBLE SYMPTOM:

All functions of EyeSight system do not operate.

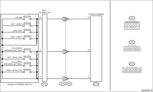
WIRING DIAGRAM:

EyeSight System EyeSight System > WIRING DIAGRAM

STEPCHECKYESNO

1.CHECK CURRENT DATA.

Confirm the current data «Cruise Control SW» of EyeSight using Subaru Select Monitor. Read Current Data

Does the display change according to the EyeSight steering switch operation-

Even if DTC is displayed, the circuit has returned to a normal condition at this time. Reproduce the failure, and then perform the diagnosis again.

NOTE:

In this case, temporary poor contact of connector, or temporary open or short circuit of harness may be the cause.

Diagnostic Procedure with Diagnostic Trouble Code (DTC) > DTC B28B8 EyeSight STEERING SWITCH 1

2.CHECK HARNESS.

1) Disconnect the stereo camera connector and EyeSight steering switch connector.

2) Using the tester, measure the resistance between stereo camera connector and EyeSight steering switch connector.

Connector & terminal

(ST3) No. 4 — (R137) No. 14:

(ST3) No. 3 — (R137) No. 16:

(ST3) No. 9 — (R137) No. 15:

Is the resistance less than 1 --

Diagnostic Procedure with Diagnostic Trouble Code (DTC) > DTC B28B8 EyeSight STEERING SWITCH 1

Repair or replace an open circuit in harness between the stereo camera connector and the EyeSight steering switch connector.

3.CHECK HARNESS.

Using the tester, measure the resistance between EyeSight steering switch connector and chassis ground.

Connector & terminal

(ST3) No. 4 — Chassis ground:

(ST3) No. 3 — Chassis ground:

(ST3) No. 9 — Chassis ground:

Is the resistance 1 M- or more-

Check the EyeSight steering switch. Switches and Harness > INSPECTION

Repair or replace the short circuit to ground in harness between the stereo camera connector and the EyeSight steering switch connector.

Dtc b28b9 eyesight steering switch 2
Detected when steering switch for EyeSight is not installed, is open-circuited or is stuck to ON.Refer to DTC B28B8 for diagnostic procedure. Diagnostic Procedure with Diagnostic Trouble Code (DTC) > ...

Dtc b28b7 ldp off switch
Detected when lane departure warning OFF switch circuit is not installed, open-circuited, or is stuck to ON.DTC DETECTING CONDITION:• Wiring of lane departure warning OFF switch is not connected ...

Other materials:

Engine lubrication system trouble in general inspection
Before performing diagnostics, make sure that the engine oil level is correct and no oil leakage exists.TroublePossible causeCorrective actionWarning light remains ON.a. Oil pressure switch failure Cracked diaphragm or oil leakage within switchReplace. Broken spring or seized contactsReplace.b ...

© 2017-2025 Copyright www.sulegacy.com