Honda Civic manuals

Subaru Legacy BN/BS (2015-2019) Service Manual: Dtc b2a06 right speaker/audio circuit

DIAGNOSIS START CONDITION:

When ACC is ON.

DTC DETECTING CONDITION:

Speaker impedance is more than 10 k- for 100 mS. (Detached speaker connection, etc.)

TROUBLE SYMPTOM:

Call function cannot be used.

RED LED illuminates.

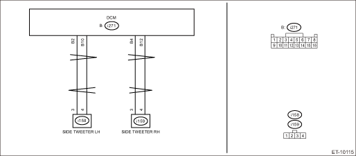
WIRING DIAGRAM:

NOTE:

For the coupling connector, refer to “WIRING SYSTEM”.

Telematics Telematics System > WIRING DIAGRAM

Without audio amplifier

With audio amplifier

CAUTION:

CommCheck is required after replacing the DCM. Telematics System > OPERATION

STEPCHECKYESNO

1.CHECK DTC.

Read the DTC. Diagnostic Code(s) Display

Is DTC B2A06 displayed- (Current malfunction)

Diagnostic Procedure with Diagnostic Trouble Code (DTC) > DTC B2A06 RIGHT SPEAKER/AUDIO CIRCUIT

Even if DTC is displayed, the circuit has returned to a normal condition at this time. Reproduce the failure, and then perform the diagnosis again.

In this case, temporary poor contact of connector, temporary open or short circuit of harness may be the cause.

2.PERFORM THE SYSTEM OPERATION CHECK.

Perform [Speaker ON] in the system operation check mode. System Operation Check Mode

Does it sound-

Diagnostic Procedure with Diagnostic Trouble Code (DTC) > DTC B2A06 RIGHT SPEAKER/AUDIO CIRCUIT

Even if DTC is displayed, the circuit has returned to a normal condition at this time. Reproduce the failure, and then perform the diagnosis again.

In this case, temporary poor contact of connector, temporary open or short circuit of harness may be the cause.

3.CHECK HARNESS (OPEN CIRCUIT).

1) Turn the ignition switch to OFF.

2) Disconnect the speaker connector and tweeter connector.

3) Disconnect the DCM connector.

4) Measure the resistance between speaker connector and tweeter connector and DCM connector.

Connector & terminal

Without audio amplifier

(i271) No. 4 — (D2) No. 2:
(i271) No. 4 — (i159) No. 1:
(i271) No. 12 — (D2) No. 1:
(i271) No. 12 — (i159) No. 3:

With audio amplifier

(i271) No. 4 — (i159) No. 3:
(i271) No. 12 — (i159) No. 4:

Is the resistance 1 - or less-

Diagnostic Procedure with Diagnostic Trouble Code (DTC) > DTC B2A06 RIGHT SPEAKER/AUDIO CIRCUIT

Repair or replace the open circuit of harness.

4.CHECK HARNESS (GROUND SHORT CIRCUIT).

Measure the resistance between DCM connector and chassis ground.

Connector & terminal

(i271) No. 4 — Chassis ground:
(i271) No. 12 — Chassis ground:

Is the resistance 1 M- or more-

Diagnostic Procedure with Diagnostic Trouble Code (DTC) > DTC B2A06 RIGHT SPEAKER/AUDIO CIRCUIT

Repair or replace the open circuit of harness.

5.CHECK THE CONNECTOR (SHORT CIRCUIT TO POWER SUPPLY).

Measure the voltage between DCM connector and chassis ground.

Connector & terminal

(i271) No. 4 (+) — Chassis ground (−):
(i271) No. 12 (+) — Chassis ground (−):

Is the voltage less than 1 V-

Diagnostic Procedure with Diagnostic Trouble Code (DTC) > DTC B2A06 RIGHT SPEAKER/AUDIO CIRCUIT

Repair or replace the short circuit of the harness.

6.CHECK THE SPEAKER.

Perform the inspection of speaker unit and tweeter unit. Front Speaker Rear Speaker

Are the speaker and tweeter OK-

Replace the DCM. Data Communication Module

Replace the speaker and tweeter. Front Speaker Rear Speaker

Dtc b2a08 sos button circuit
DIAGNOSIS START CONDITION:When ignition switch is ON.DTC DETECTING CONDITION:The following conditions occur for at least 50 ms.• SOS button impedance is more than 10 k-.• SOS button is stu ...

Dtc b2a05 left speaker/audio circuit
DIAGNOSIS START CONDITION:When ACC is ON.DTC DETECTING CONDITION:Speaker impedance is more than 10 k- for 100 mS. (Detached speaker connection, etc.)TROUBLE SYMPTOM:• Call function cannot be use ...

Other materials:

Ignition timing inspection
CAUTION:After warming-up, engine becomes very hot. Be careful not to burn yourself at measurement.1. METHOD WITH SUBARU SELECT MONITOR1. Before checking the ignition timing, check the following item:(1) Check the air cleaner element is free from clogging, spark plugs are in good condition, and hoses ...

© 2017-2026 Copyright www.sulegacy.com