Honda Civic manuals

Subaru Legacy BN/BS (2015-2019) Service Manual: Dtc p0400 egr "a" flow

DTC DETECTING CONDITION:

Detected when two consecutive driving cycles with fault occur.

TROUBLE SYMPTOM:

Movement performance problem when engine is low speed

Improper idling

Movement performance problem

CAUTION:

After servicing or replacing faulty parts, perform Clear Memory Mode Clear Memory Mode > OPERATION, and Inspection Mode Inspection Mode > PROCEDURE.

STEPCHECKYESNO

1.CHECK CURRENT DATA.

1) Start the engine.

2) Read the value of «Mani. Absolute Pressure» using the Subaru Select Monitor or a general scan tool.

NOTE:

Subaru Select Monitor

For detailed operation procedures, refer to “Read Current Data For Engine”. Subaru Select Monitor

General scan tool

For detailed operation procedures, refer to the general scan tool operation manual.

Is the value of «Mani. Absolute Pressure» 53.3 kPa (400 mmHg, 15.75 inHg) or more-

Make sure that the EGR control valve, manifold absolute pressure sensor and throttle body are installed securely.

Diagnostic Procedure with Diagnostic Trouble Code (DTC) > DTC P0400 EGR "A" FLOW

2.CHECK EGR CONTROL VALVE.

Remove the EGR control valve.

Are there any holes, clogged lines or foreign matters in the EGR system-

Repair the EGR system.

Replace EGR control valve. EGR Control Valve

1. OUTLINE OF DIAGNOSIS

Detect EGR system malfunction.

Intake manifold pressure (negative pressure) is constant because the throttle valve is fully closed during deceleration fuel cut. At this time, when the EGR valve is opened/closed, the intake manifold pressure will change. EGR System OK/NG is judged by the range of this change.

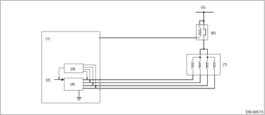
2. COMPONENT DESCRIPTION

(1)

Engine control module (ECM)

(4)

Switch circuit

(6)

Main relay

(2)

Computer unit (CPU)

(5)

Battery voltage

(7)

EGR control valve

(3)

Detecting circuit

3. EXECUTION CONDITION

Secondary Parameters

Execution condition

Engine speed

1300 rpm — 5000 rpm (CVT model)

1400 rpm — 5000 rpm (MT model)

Intake air temperature

≥ 0 °C(32 °F)

Battery voltage

≥ 10.9 V

Barometric pressure

≥ 75.1 kPa (563 mmHg, 22.2 inHg)

Vehicle speed

≥40 km/h (24.9 MPH)

Fuel shut-off function of 3000 ms or more

In operation

Neutral switch

OFF

4. GENERAL DRIVING CYCLE

Perform the diagnosis only once during deceleration fuel cut from a vehicle speed of 40 km/h (24.9 MPH) or more.

Be careful of vehicle speed and engine speed. (Diagnosis will not be completed if the vehicle speed and engine speed conditions become out of specification due to deceleration.)

5. DIAGNOSTIC METHOD

Measure the pressure values when the enable conditions are established, and perform diagnosis by calculating those results.

(1) Label the intake manifold pressure value as PMOF1, which is observed when enable conditions are established, and set the EGR target step to 45 step(s) (nearly full open).

(2) Label the intake manifold pressure value as PMON, which is observed after 1000 ms has passed since EGR target step was set to 45 step(s) (when the enable conditions were established), and set the EGR target step to 0.

(3) Label the intake manifold pressure as PMOF2, which is observed after 1000 ms has passed since EGR target step was set to 0 (after (1000 ms + 1000 ms) have passed since the enable conditions were established).

Judge as NG when the following conditions are established.

Judgment Value

Malfunction Criteria

Threshold Value

PMON − (PMOF1 + PMOF2)/2

< 2.5 kPa (18.63 mmHg, 0.7 inHg)

Time Needed for Diagnosis: 1000 ms - 2

Malfunction Indicator Light Illumination: Illuminates when malfunction occurs in 2 continuous driving cycles.

(A)

3000 ms

(B)

1000 ms

(C)

1000 ms

(D)

45 step(s)

Dtc p0420 catalyst system efficiency below threshold bank 1
DTC DETECTING CONDITION:Detected when two consecutive driving cycles with fault occur.TROUBLE SYMPTOM:• Engine stalls.• Idle mixture is out of specifications.CAUTION:After servicing or rep ...

Dtc p0354 ignition coil "d" primary control circuit/open
NOTE:For the diagnostic procedure, refer to DTC P0351. Diagnostic Procedure with Diagnostic Trouble Code (DTC) > DTC P0351 IGNITION COIL "A" PRIMARY CONTROL CIRCUIT/OPEN1. OUTLINE OF DIAGNOSISNOTE:Fo ...

Other materials:

Dtc u0208 lost communication with seat memory
DTC DETECTING CONDITION:No data is received from power seat CM.TROUBLE SYMPTOM:The power seat does not operate normally.WIRING DIAGRAM:NOTE:For the coupling connector, refer to “WIRING SYSTEM”.Power seat system Power Seat System > WIRING DIAGRAMSTEPCHECKYESNO1.CHECK DTC.Read the DTC of ...

© 2017-2026 Copyright www.sulegacy.com