Honda Civic manuals

Subaru Legacy BN/BS (2015-2019) Service Manual: Dtc b2507 prg motor circuit open

DTC DETECTING CONDITION:

When the open circuit in motor is detected during the motor operation.

TROUBLE SYMPTOM:

The power rear gate does not operate.

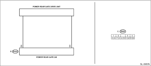
WIRING DIAGRAM:

Power rear gate system Power Rear Gate System > WIRING DIAGRAM

STEPCHECKYESNO

1.CHECK AUTO OPERATION.

1) Turn the ignition switch to OFF.

2) Using operation switch, perform power rear gate auto open/close operation from full close position or full open position.

Is auto operation activated-

Even if DTC is displayed, the circuit has returned to a normal condition at this time. Reproduce the failure, and then perform the diagnosis again.

NOTE:

In this case, temporary poor contact of connector, temporary open or short circuit of harness may be the cause.

Diagnostic Procedure with Diagnostic Trouble Code (DTC) > DTC B2507 PRG MOTOR CIRCUIT OPEN

2.CHECK DTC.

1) Turn the ignition switch to ON.

2) Using the Subaru Select Monitor, read DTC of PRG CM. Read Diagnostic Trouble Code (DTC)

Is DTC B2507 displayed- (Current malfunction)

Diagnostic Procedure with Diagnostic Trouble Code (DTC) > DTC B2507 PRG MOTOR CIRCUIT OPEN

Even if DTC is displayed, the circuit has returned to a normal condition at this time. Reproduce the failure, and then perform the diagnosis again.

NOTE:

In this case, temporary poor contact of connector, temporary open or short circuit of harness may be the cause.

3.CHECK POWER REAR GATE DRIVE UNIT (OPEN CIRCUIT).

1) Turn the ignition switch to OFF.

2) Disconnect the PRG CM connector in the order of (R423) > (R424).

3) Measure the resistance between PRG CM connectors.

Connector & terminal

(R424) No. 3 — (R424) No. 4:

Is the resistance less than 1 --

Diagnostic Procedure with Diagnostic Trouble Code (DTC) > DTC B2507 PRG MOTOR CIRCUIT OPEN

Replace the PRG DU. Power Rear Gate Drive Unit

4.CHECK CONNECTOR.

Check the PRG CM connector (R424).

Is there poor contact of connector-

Repair or replace the poor contact of connector.

Replace the PRG DU. Power Rear Gate Drive Unit

Dtc b2508 prg motor circuit low
DTC DETECTING CONDITION:When the short to ground in motor circuit is detected.TROUBLE SYMPTOM:The power rear gate does not operate.WIRING DIAGRAM:Power rear gate system Power Rear Gate System > WIRIN ...

General description
...

Other materials:

Dtc p0111 intake air temperature sensor 1 circuit range/performance bank 1
DTC DETECTING CONDITION:Detected when two consecutive driving cycles with fault occur.TROUBLE SYMPTOM:• Improper idling• Poor driving performanceCAUTION:After servicing or replacing faulty parts, perform Clear Memory Mode Clear Memory Mode > OPERATION, and Inspection Mode Inspection Mo ...

© 2017-2026 Copyright www.sulegacy.com