Honda Civic manuals

Subaru Legacy BN/BS (2015-2019) Service Manual: Dtc b2508 prg motor circuit low

DTC DETECTING CONDITION:

When the short to ground in motor circuit is detected.

TROUBLE SYMPTOM:

The power rear gate does not operate.

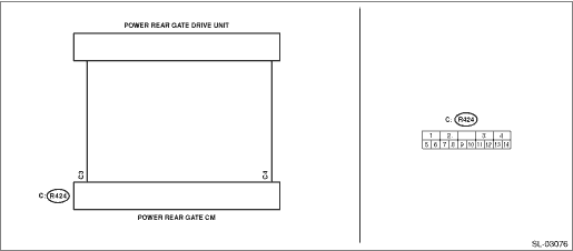
WIRING DIAGRAM:

Power rear gate system Power Rear Gate System > WIRING DIAGRAM

STEPCHECKYESNO

1.CHECK AUTO OPERATION.

1) Turn the ignition switch to OFF.

2) Using operation switch, perform power rear gate auto open/close operation from full close position or full open position.

Is auto operation activated-

Even if DTC is displayed, the circuit has returned to a normal condition at this time. Reproduce the failure, and then perform the diagnosis again.

NOTE:

In this case, temporary poor contact of connector, temporary open or short circuit of harness may be the cause.

Diagnostic Procedure with Diagnostic Trouble Code (DTC) > DTC B2508 PRG MOTOR CIRCUIT LOW

2.CHECK DTC.

1) Turn the ignition switch to ON.

2) Using the Subaru Select Monitor, read DTC of PRG CM. Read Diagnostic Trouble Code (DTC)

Is DTC B2508 displayed- (Current malfunction)

Diagnostic Procedure with Diagnostic Trouble Code (DTC) > DTC B2508 PRG MOTOR CIRCUIT LOW

Even if DTC is displayed, the circuit has returned to a normal condition at this time. Reproduce the failure, and then perform the diagnosis again.

NOTE:

In this case, temporary poor contact of connector, temporary open or short circuit of harness may be the cause.

3.CHECK HARNESS (GROUND SHORT CIRCUIT).

1) Turn the ignition switch to OFF.

2) Disconnect the PRG CM connector in the order of (R423) > (R424).

3) Using a tester, measure the resistance between the PRG CM connector and chassis ground.

Connector & terminal

(R424) No. 3 — Chassis ground:

(R424) No. 4 — Chassis ground:

Is the resistance 1 M- or more-

Diagnostic Procedure with Diagnostic Trouble Code (DTC) > DTC B2508 PRG MOTOR CIRCUIT LOW

Replace the PRG DU. Power Rear Gate Drive Unit

4.CHECK HARNESS (OPEN CIRCUIT).

Using a tester, measure the resistance between the PRG CM connectors.

Connector & terminal

(R424) No. 3 — (R424) No. 4:

Is the resistance 0.1 - or more-

Diagnostic Procedure with Diagnostic Trouble Code (DTC) > DTC B2508 PRG MOTOR CIRCUIT LOW

Replace the PRG DU. Power Rear Gate Drive Unit

5.CHECK CONNECTOR.

Check the PRG CM connector (R424).

Is there poor contact of connector-

Repair or replace the poor contact of connector.

Replace the PRG CM. Power Rear Gate Control Module

Dtc b250b rotation sensor a stuck
DTC DETECTING CONDITION:When output of drive unit rotation sensor does not last for 1 sec during the auto-operation.TROUBLE SYMPTOM:The power rear gate does not operate.WIRING DIAGRAM:Power rear gate ...

Dtc b2507 prg motor circuit open
DTC DETECTING CONDITION:When the open circuit in motor is detected during the motor operation.TROUBLE SYMPTOM:The power rear gate does not operate.WIRING DIAGRAM:Power rear gate system Power Rear Gat ...

Other materials:

Dtc b2350 rear radar communication error between master and slave
DTC DETECTING CONDITION:• Defective harness for CAN communication between radar sensor LH and radar sensor RH• Defective radar sensorTROUBLE SYMPTOM:• All functions of BSD/RCTA stop.• Fail icon is displayed in the combination meter LCD display.• Failure-related notifica ...

© 2017-2026 Copyright www.sulegacy.com