Honda Civic manuals

Subaru Legacy BN/BS (2015-2019) Service Manual: Dtc b250b rotation sensor a stuck

DTC DETECTING CONDITION:

When output of drive unit rotation sensor does not last for 1 sec during the auto-operation.

TROUBLE SYMPTOM:

The power rear gate does not operate.

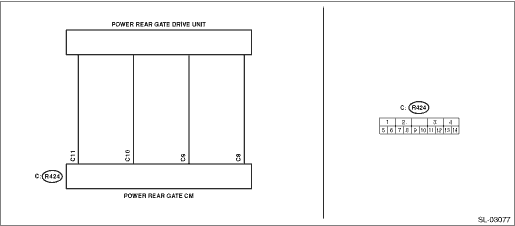
WIRING DIAGRAM:

Power rear gate system Power Rear Gate System > WIRING DIAGRAM

STEPCHECKYESNO

1.CHECK AUTO OPERATION.

1) Turn the ignition switch to OFF.

2) Using operation switch, perform power rear gate auto open/close operation from full close position or full open position.

Does it work as fully open > fully close and fully close > fully open-

Even if DTC is displayed, the circuit has returned to a normal condition at this time. Reproduce the failure, and then perform the diagnosis again.

NOTE:

In this case, temporary poor contact of connector, temporary open or short circuit of harness may be the cause.

Diagnostic Procedure with Diagnostic Trouble Code (DTC) > DTC B250B ROTATION SENSOR A STUCK

2.CHECK DTC.

1) Turn the ignition switch to ON.

2) Using the Subaru Select Monitor, read DTC of PRG CM. Read Diagnostic Trouble Code (DTC)

Is DTC B250B, B250D, or B2525 displayed- (Current malfunction)

Diagnostic Procedure with Diagnostic Trouble Code (DTC) > DTC B250B ROTATION SENSOR A STUCK

Even if DTC is displayed, the circuit has returned to a normal condition at this time. Reproduce the failure, and then perform the diagnosis again.

NOTE:

In this case, temporary poor contact of connector, temporary open or short circuit of harness may be the cause.

3.CHECK ROTATION SENSOR SIGNAL.

Using an oscilloscope, measure the waveform between PRG CM connectors.

Connector & terminal

(R424) No. 9 — (R424) No. 8:

(R424) No. 10 — (R424) No. 8:

Does the voltage change (approx. 0 V ←> 12 V), when the power rear gate is manually opened/closed-

Diagnostic Procedure with Diagnostic Trouble Code (DTC) > DTC B250B ROTATION SENSOR A STUCK

Replace the PRG DU. Power Rear Gate Drive Unit

4.CHECK PRG CM.

Using an oscilloscope, measure the waveform between PRG CM connectors.

Connector & terminal

(R424) No. 9 (+) — (R424) No. 11 (−):

(R424) No. 10 (+) — (R424) No. 11 (−):

Does the waveform change as noted in the margin when the power rear gate is manually opened/closed-

Replace the PRG CM. Power Rear Gate Control Module

Replace the PRG DU. Power Rear Gate Drive Unit

NOTE:

When the power rear gate is open

(A)

Approx. 10 V

(B)

Cycles change according to the time the power rear gate is opened/closed.

When the power rear gate is closed

(A)

Approx. 10 V

(B)

Cycles change according to the time the power rear gate is opened/closed.

Dtc b250d rotation sensor b stuck
NOTE:For the diagnostic procedure, refer to DTC B250B. Diagnostic Procedure with Diagnostic Trouble Code (DTC) > DTC B250B ROTATION SENSOR A STUCK ...

Dtc b2508 prg motor circuit low
DTC DETECTING CONDITION:When the short to ground in motor circuit is detected.TROUBLE SYMPTOM:The power rear gate does not operate.WIRING DIAGRAM:Power rear gate system Power Rear Gate System > WIRIN ...

Other materials:

Dtc u1232 lost communication with rear/side radar control module
DTC DETECTING CONDITION:No data is received from radar sensor.TROUBLE SYMPTOM:Radar sensor does not operate normally.STEPCHECKYESNO1.CHECK PERFORMING OF BASIC DIAGNOSTIC PROCEDURE.Was the basic diagnostic procedure performed up to STEP 8- Diagnostic Procedure with Diagnostic Trouble Code (DTC) > DTC ...

© 2017-2026 Copyright www.sulegacy.com