Honda Civic manuals

Subaru Legacy BN/BS (2015-2019) Service Manual: Dtc b2784 antenna circuit (push engine switch)

DTC DETECTING CONDITION:

When open or short circuit occurs in the antenna coil.

TROUBLE SYMPTOM:

The keyless access function may not be operable.

CAUTION:

For replacement procedure of keyless access CM, refer to the “REGISTRATION MANUAL FOR IMMOBILIZER” provided as a separate volume.

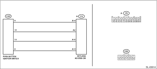
WIRING DIAGRAM:

NOTE:

For the coupling connector, refer to “WIRING SYSTEM”.

Immobilizer system Immobilizer System > WIRING DIAGRAM

STEPCHECKYESNO

1.CHECK STEERING LOCK CM.

1) Disconnect the push button ignition switch connector.

2) Disconnect the keyless access CM connector.

3) Using the tester, measure the resistance between terminals.

Connector & terminal

(i150) No. 14 — (i75) No. 15:
(i150) No. 9 — (i75) No. 14:
(i150) No. 10 — (i75) No. 2:
(i150) No. 8 — (i75) No. 13:

Is the resistance less than 1 --

Diagnostic Procedure with Diagnostic Trouble Code (DTC) > DTC B2784 ANTENNA CIRCUIT (PUSH ENGINE SWITCH)

Repair or replace the open circuit of harness.

2.CHECK HARNESS.

Using the tester, measure the resistance between terminals.

Connector & terminal

(i150) No. 14 — Chassis ground:
(i150) No. 9 — Chassis ground:
(i150) No. 10 — Chassis ground:

Is the resistance 10 k- or more-

Diagnostic Procedure with Diagnostic Trouble Code (DTC) > DTC B2784 ANTENNA CIRCUIT (PUSH ENGINE SWITCH)

Repair or replace the short circuit of the harness.

3.CHECK PUSH BUTTON IGNITION SWITCH.

1) Replace the push button ignition switch. Push Button Ignition Switch

2) Using the Subaru Select Monitor, clear the memory. Clear Memory Mode

3) Read DTC using the Subaru Select Monitor. Read Diagnostic Trouble Code (DTC)

Is DTC B2784 displayed-

Replace the keyless access CM. Keyless Access CM

Malfunction occurred in the push button ignition switch.

Dtc b2785 lin communication
DTC DETECTING CONDITION:When the keyless access CM detected the collation system LIN bus communication error three times in a row.TROUBLE SYMPTOM:The keyless access function may not be operable.CAUTIO ...

Dtc b2782 steering lock drive request signal correlation
DTC DETECTING CONDITION:When the open or short circuit in the steering lock motor power supply circuit is detected.TROUBLE SYMPTOM:• The steering lock cannot be released.• Engine will not ...

Other materials:

Installation
1. SEDAN MODEL1. Install the rear side marker light bulb. Rear Combination Light Assembly > ASSEMBLY2. Install the trunk trim panel - side.3. Connect the ground terminal to battery sensor. NOTE2. OUTBACK MODEL1. Install the rear side marker light bulb. Rear Combination Light Assembly > ASSEMBLY2. ...

© 2017-2026 Copyright www.sulegacy.com