Honda Civic manuals

Subaru Legacy BN/BS (2015-2019) Service Manual: 13

Detected when clutch pedal is depressed or malfunction related to clutch switch occurs.

TROUBLE SYMPTOM:

Cruise control cannot be set.

Cruise control cannot be released.

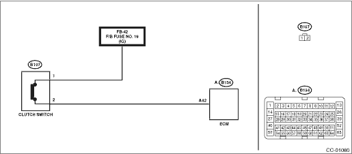
WIRING DIAGRAM:

Cruise control system Cruise Control System > WIRING DIAGRAM

STEPCHECKYESNO

1.CHECK CLUTCH SWITCH.

Check the clutch switch. Clutch Switch

Is the clutch switch and installation position OK-

Diagnostic Procedure with Cancel Code > 13

Replace the clutch switch. Or adjust the installation position.

2.CHECK CLUTCH SWITCH CIRCUIT.

1) Turn the ignition switch to OFF.

2) Disconnect the clutch switch harness connector.

3) Turn the ignition switch to ON.

4) Measure the voltage between harness connector terminal and chassis ground.

Connector & terminal

(B107) No. 1 (+) — Chassis ground (−):

Is the voltage 10 V or more-

Diagnostic Procedure with Cancel Code > 13

Check fuse No. 19 (in fuse & relay box).

Check open or shorted circuit of harness between clutch switch and fuse & relay box.

3.CHECK CLUTCH SWITCH CIRCUIT.

1) Turn the ignition switch to OFF.

2) Disconnect the harness connector of ECM.

3) Measure the resistance between clutch switch harness connector terminal and ECM harness connector terminal.

Connector & terminal

(B107) No. 2 — (B137) No. 15:

Is the resistance less than 10 --

Replace the ECM.
Engine Control Module (ECM)
Engine Control Module (ECM)

Repair the harness.

14
Detected when select lever is set in the neutral position, or when malfunction related to neutral position switch occurs.TROUBLE SYMPTOM:Cruise control cannot be set.WIRING DIAGRAM:NOTE:For the coupli ...

12
Detected when brake pedal is depressed or malfunction related to stop light & brake switch occurs.TROUBLE SYMPTOM:• Cruise control cannot be set.• Cruise control cannot be released.WIRING ...

Other materials:

Dtc c1935 ignition switch circuit
DTC DETECTING CONDITION:A fault is detected after a predetermined period of time, if the hardware IGN signal and CAN IGN signal were compared and did not match.TROUBLE SYMPTOM:Brake warning light illuminates.WIRING DIAGRAM:Parking brake / brake fluid level warning light system Parking Brake / Brake ...

© 2017-2025 Copyright www.sulegacy.com